北区云睿台新动态!预计五月开盘,售价会是怎样的?
扫描到手机,新闻随时看
扫一扫,用手机看文章
更加方便分享给朋友
“等待~永久的等待~”咳咳,搞错了!
小羊之所以这么兴奋的原因,完全是因为后台早被问烂的北区云睿台项目,终于传来新动态。
在最近小羊深扒下,项目开盘信息、优惠方式、户型图等等,你想知道的,全部get。

1NUMBER
预计月底预售,五月中旬开盘
云睿台位于汕头市金平区广厦春江路3号,是今年年初刚刚亮相的新盘。
在2020年10月28日,由深圳市元启胜科技有限公司,以2.6亿元竞得该地块,折合楼面价6404元/m²,溢价率85.7%。
从今年年初亮相,到当下进展不断,这不到半年的推进效率,属实可以给它点个赞。
咨询现场销售人员得知,项目预计这个月底就将取得预售,五月份中旬左右便会开盘。另外,现在项目也已经开始启动冻资中。
2NUMBER
对比周边二手房,预计售价1.2万/平
对大家而言,最受关注的肯定还是房价问题,不过目前该项目还没有出现确切的定价。
据此前电话询问销售人员得知,售价可能在1.3-1.5万/平左右,其实回顾项目拍地时约6404元/m²的楼面成交价,就足以清楚它之后定价不会太便宜。

看回项目周边较为热门的二手房,其二手房价同样趋于高位。其中,与云睿台不过一路之隔的天华美地,二手房价已达1.3万+/平,而新星家园二期更成功突破1.45万/平。
综合以上几点,我认为,后续云睿台定价至少在1.2万/平左右,想要房价一平不过万,那就特别不可能了。当然这不过是我自己的猜想,后续房价是否有惊喜?最终定价如何?5月份开盘就能揭晓了。
3NUMBER
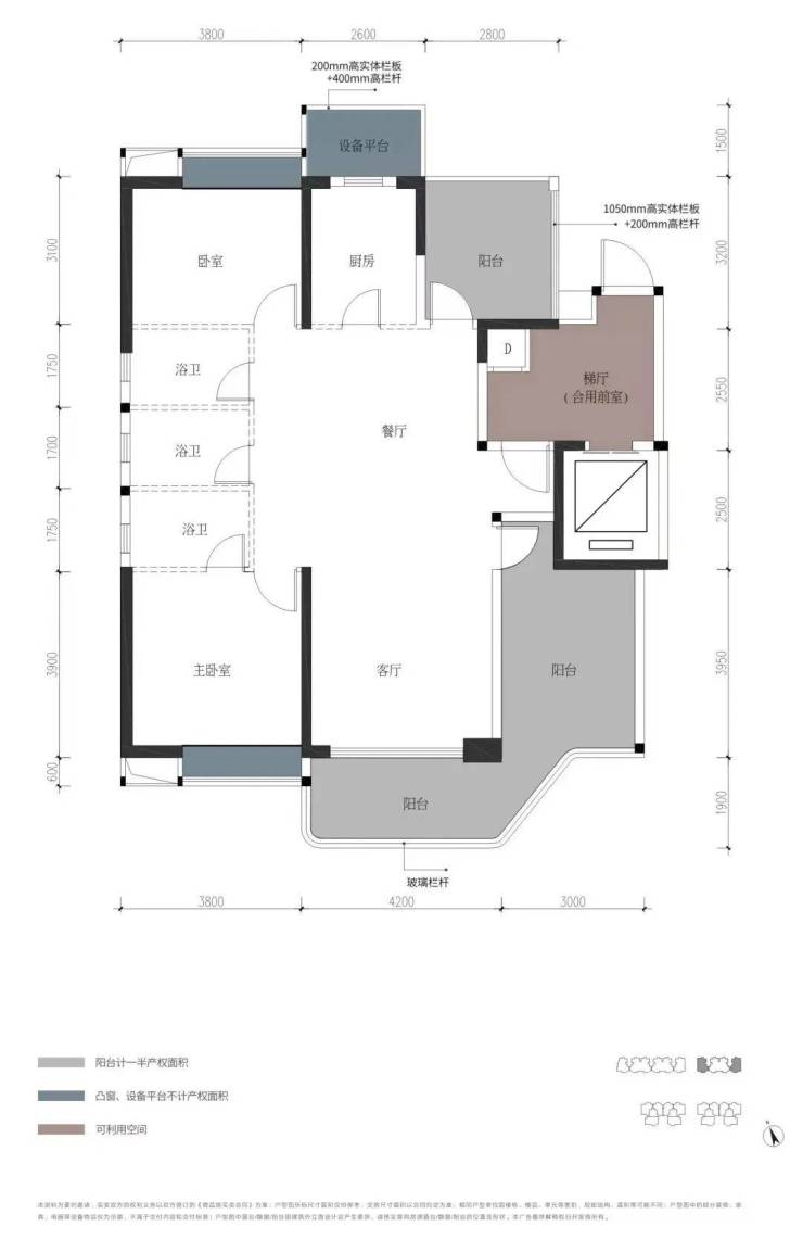
建面约100-141m²三至四房
了解完项目优惠信息、开盘时间等内容后,再让我们来看看其产品本身。

项目将规建4栋住宅楼,而届时开盘首推的为1#、4#。从示意图可以得知,首推的1#、4#已经涵盖了建面约100-141m²的三至四房。
建面约135m²
建面约126m²
建面约115m²
建面约107m²
延伸阅读
一个项目的好坏除了项目本身,其所处地、周边存在的各项配套一样重要。
单从这点上看,云睿台还是具备一定优势的。
交通方面,项目地处的春江路,向北通过嵩山北路,向南通过天山北路,与汕头其他城市主干道接驳,轻松串联汕头各地。
而由于春江路为双向单车道的关系,日常通勤时间难免会出现塞车现象。

△春江路实景丨百度地图
商圈方面,项目距离北区“王牌商业体”卜蜂中心2km,另外,项目计划规建的商业综合体,现在也已经进入打桩阶段。

△项目在建商业体
另外,在周边各醇熟社区影响下,日常生活所需基本无恼。

医疗教育方面,医疗配套算是项目的一大优势,与汕头大学第二附属医院不过一个路口的距离,且在北区还有金平区中医医院另一医疗机构。

广厦幼儿园、杜鹃小学、聿怀初级中学、聿怀实验学校等汕头颇有知名度的学校环伺在旁。

△2021年金平区公办小学划分范围
据了解,云睿台隶属春峰居委。依照去年金平区公办小学学区范围划分,届时入住后孩子可能就嘉顿学校、杜鹃小学或者珠厦学校。(仅供参考,具体以实际为准)
北区还有两个新盘在售
在新盘供应极度欠缺的北区中,除云睿台外,其实还有两个在售新盘可以了解。

项目分别为汇悦春天花园二区、东晖雅居。咨询发现,汇悦春天二区目前打出1.1万/平的吹风价,东晖雅居则为1.12万/平。
综合种种,三个项目其实各自存在自身亮点,就你们而言,如果想在北区置业,又会选择哪个产品呢?
声明:本文由入驻焦点开放平台的作者撰写,除焦点官方账号外,观点仅代表作者本人,不代表焦点立场。


